Raeren – charmantes Haus mit Blick ins Grüne
- Energieklasse:
- Espec: 202 kWh/m2.a
- Etotal:
- Code (Energieausweis): 20250508024838
- Jahrgang (Energieausweis): 1992
- Gültig bis (Energieausweis): 2035
Objektbeschreibung:
Entdecken Sie dieses charmante Reihenendhaus in gepflegtem Zustand, das sich ideal für Familien und Naturliebhaber eignet. Erbaut im Jahr 1992, bietet dieses Haus eine harmonische Verbindung aus klassischem Design und moderner Funktionalität. Auf einer großzügigen Grundstücksfläche von insgesamt ca. 1.700m² erwartet Sie ein idyllisches Zuhause, das keine Wünsche offen lässt.
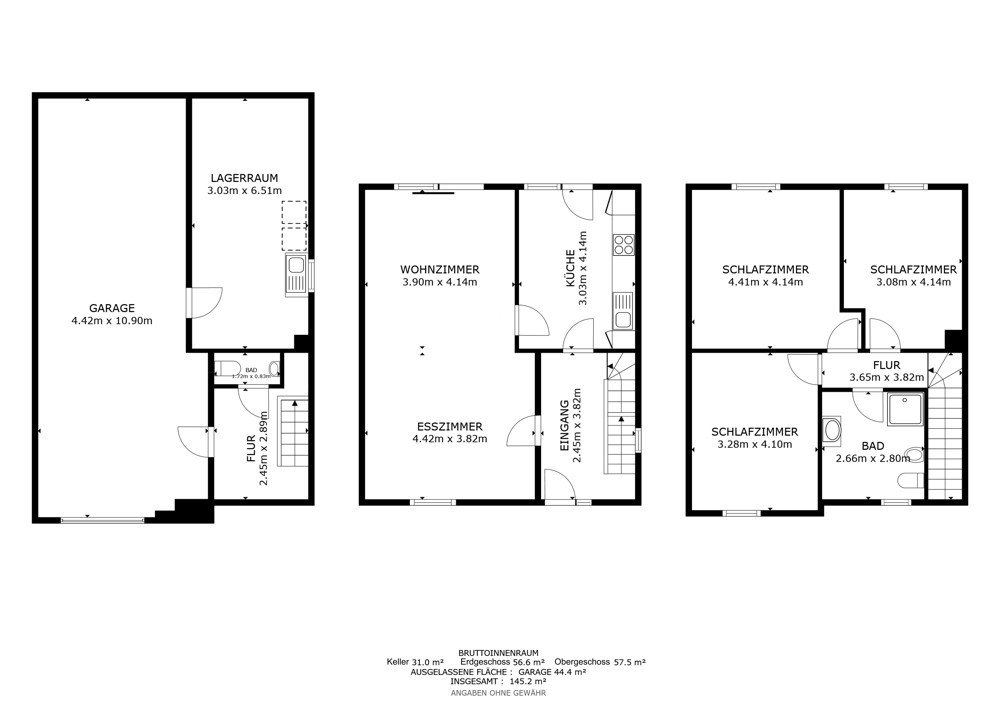
Die Wohnfläche von ca. 114 m² verteilt sich auf zwei Etagen und umfasst insgesamt vier Zimmer, darunter drei geräumige Schlafzimmer, die ausreichend Platz für Ihre Familie bieten. Das helle Badezimmer rundet das komfortable Raumangebot ab. Der großzügige Speicher bietet zusätzliches Potenzial, da er bei Bedarf ausgebaut werden kann.
Der großzügige Wohnbereich lädt zum Verweilen ein und bietet direkten Zugang zu einem wunderschönen Garten und einer sonnigen Terrasse, die sich perfekt für entspannte Stunden im Freien eignen. Zusätzliche Nutzfläche von ca. 31 m² gewährleistet Ihnen viel Stauraum und vielseitige Nutzungsmöglichkeiten.
Ein besonderes Plus: Der Bereich vor dem Haus besteht aus privaten Parkplätzen, die durch Barrieren gesichert und somit nicht öffentlich zugänglich sind. Diese Fläche ist auf die acht Häuser der Anlage aufgeteilt und sorgt für eine komfortable Parksituation direkt vor der Haustür.
Verpassen Sie nicht die Gelegenheit, dieses gepflegte Eigenheim zu Ihrem neuen Lebensmittelpunkt zu machen. Kontaktieren Sie uns gerne für weitere Informationen oder um einen Besichtigungstermin zu vereinbaren. Wir freuen uns darauf, Ihnen diese Immobilie persönlich vorzustellen und Ihren Wohntraum wahr werden zu lassen.
Ausstattung:
– Vollunterkellert
– Holzfenster mit Doppelverglasung
– Bodenbeläge: Fliesen, Vinyl, Laminat
– Terrasse neu gefliest
– Einbauküche
– Garage mit elektrischem Tor ( Platz für 2 Autos)
– Rollläden im ganzen Haus (elektrisch nur im Wohnzimmer)
– Gäste – WC
– Neuer Brenner 2011 + Warmwasserboiler
– 2.400 Liter – Öltank
– Ausbaubarer Dachboden
Lage:
Das ansprechende Reihenendhaus befindet sich in der charmanten Gemeinde Raeren, gelegen in der malerischen Region Ostbelgien. Eingebettet in eine idyllische Umgebung, bietet die Lage eine perfekte Kombination aus naturnaher Ruhe und gut erreichbarer Infrastruktur. Die nahegelegenen Wälder und Wiesen eröffnen zahlreiche Möglichkeiten zur Erholung im Freien und für Aktivitäten in der Natur.
Das Zentrum von Raeren, bekannt für seine reichhaltige Geschichte und kulturellen Sehenswürdigkeiten, liegt nur wenige Minuten entfernt und ermöglicht einen schnellen Zugang zu Einkaufsmöglichkeiten, Schulen und gastronomischen Einrichtungen. Die Anbindung an das öffentliche Verkehrsnetz sowie die Nähe zu wichtigen Verkehrsstraßen sorgen für eine ausgezeichnete Erreichbarkeit der umliegenden Städte und Regionen, einschließlich der benachbarten Stadt Aachen in Deutschland.
Diese Lage ist ideal für all jene, die das ruhige Leben im Grünen schätzen und dennoch die Vorzüge einer guten urbanen Anbindung nicht missen möchten.
Sonstige Angaben:
PEB Nr.: 20250508024838
Gültig bis: 08.05.2035
Gesamter theoretischer Primärenergieverbrauch: 42.578 kWh/Jahr
Spezifischer Primärenergieverbrauch: 202 kWh/m² Jahr
Energieklasse C
—
Kataster 995 €