Raeren – Charmantes Einfamilienhaus mit Gartenidylle
- Energieklasse:
- Espec: 204 kWh/m2.a
- Etotal: 59.711 kWh/a
- Code (Energieausweis): 20250715021800
- Jahrgang (Energieausweis): 2025
- Gültig bis (Energieausweis): 2035
Beschreibung:
Willkommen zu Ihrem potenziellen neuen Zuhause in diesem charmanten und gepflegten Einfamilienhaus, das zum Kauf bereitsteht! Erbaut im Jahr 1976/1977, bietet dieses zweistöckige Haus eine großzügige Wohnfläche von ca. 166 m² sowie eine zusätzliche Nutzfläche von ca. 70 m². Es befindet sich auf einem weitläufigen Grundstück von ca. 724 m², das Ihnen viel Raum für Aktivitäten im Freien gibt.
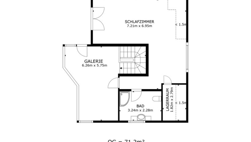
Das Haus verfügt über eine offene Bauweise mit drei gut geschnittenen Zimmer, darunter ein geräumiges
Schlafzimmer, ein modernes Badezimmer und eine Galerie. Die einladende Terrasse und der geräumige Balkon bieten Ihnen die Möglichkeit, den Tag mit einem entspannten Blick auf den eigenen Teich ausklingen zu lassen. Hier können Sie ruhige Stunden im Freien genießen und Ihre persönliche Grün-Oase gestalten.
Dieses Einfamilienhaus überzeugt nicht nur durch seine gepflegte Erscheinung, sondern auch durch seine vielseitigen Nutzungsmöglichkeiten. Es bietet ausreichend Platz, um Ihre individuellen Wohnträume zu verwirklichen.
Lassen Sie sich diese einmalige Gelegenheit nicht entgehen, ein Haus mit außerordentlichem Potenzial zu erwerben, das sowohl durch seine Lage als auch durch seinen Charme besticht. Kontaktieren Sie uns noch heute, um weitere Informationen zu erhalten und einen Besichtigungstermin zu vereinbaren.
Ausstattung:
2001: Heizungsanlage
2009: Sanitär
2010: Markise ca. 4.000€
2013: PV-Anlage 4,2 KW
2023: Dach zum Garten
Dämmung (ca. 5.500€)
2024: Gaube (ca. 6.500€)
– Vollunterkellert
– Doppel Verglasung
– Garage mit Sektionaltor
– Teich mit Wasserfilteranlage
– Alarmanlage
– Fußbodenheizung EG und Badezimmer OG
– Einbauküche ca. 12.000€
– Öl Heizung 2.800l
– Vollholztreppe
– Holzkamin
– gemauerte Grillstelle
– Brunnen (ca. 2m tief)
– Pavillon mit mittiger Feuerstelle
Lage:
Das angebotene Einfamilienhaus liegt in der charmanten Gemeinde Raeren im Osten Belgiens. Die Region besticht durch ihre reizvolle Naturkulisse, sanft hügelige Landschaften und eine ruhige, naturnahe Atmosphäre, die sowohl Einheimische als auch Besucher begeistert. Eingebettet in die idyllische Umgebung des Naturparks Hohes Venn–Eifel bietet Raeren ideale Bedingungen für Naturliebhaber, Wanderfreunde und Radfahrer. Das Haus liegt in der Nähe des Vennbahnradweges ca.1 Km entfernt und der Grenze zu Deutschland ca. 1 Km.
In unmittelbarer Umgebung befinden sich sämtliche Einrichtungen des täglichen Bedarfs. Die Gemeindeschule Raeren ist nur etwa 2 km entfernt und bequem erreichbar. Verschiedene Einkaufsmöglichkeiten liegen ebenfalls in der Nähe – am Grenzübergang befinden sich unter anderem ein EDEKA, ein ALDI sowie ein dm-Drogeriemarkt, jeweils rund 6 km entfernt.
Dank der guten Verkehrsanbindung sind auch größere Städte schnell erreichbar: Das Aquin Plaza in Aachen liegt etwa 14 km, der Aachener Markt rund 15 km und das Uniklinikum Aachen etwa 17 km vom Objekt entfernt.
Die gelungene Kombination aus ländlicher Ruhe, kultureller Vielfalt und der Nähe zu urbanen Zentren macht diesen Standort besonders attraktiv für Familien und Pendler, die ein harmonisches Wohnumfeld mit hohem Freizeitwert suchen.
Sonstige Angaben:
PEB Nr.: 20250715021800
Gültig bis: 15.07.2035
Gesamter theoretischer Primärenergieverbrauch: 59.711kWh/Jahr
Spezifischer Primärenergieverbrauch: 204 kWh/m² Jahr
Energieklasse C
—
Kataster ca. 1.137€