Eupen

Moderner Neubau in Kettenis: Nachhaltig leben im Grenzgebiet – Design trifft Effizienz in Kettenis

Schlafzimmer: 3 Bäder: 2 Grundstück: 587 m² Wohnfläche: 168 m² Nutzfläche: 35 m² Parkplätze: 3 Heizung: Luftwärmepumpe Baujahr: 2026
  • Energieklasse:
  • Espec:
  • Etotal:
  • Code (Energieausweis):
  • Jahrgang (Energieausweis):
  • Gültig bis (Energieausweis):

Beschreibung

 

Inmitten des beliebten Eupener Ortsteils Kettenis, in zweiter Reihe zur Aachener Straße und erschlossen über einen privaten Zufahrtsweg, entsteht auf einem 587 m² großen Grundstück dieser moderne und nachhaltige Neubau in Holz-Beton-Hybridbauweise.
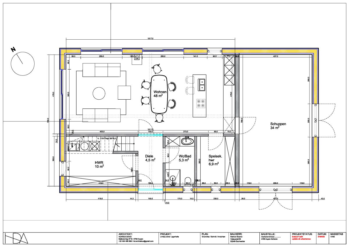
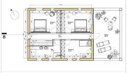
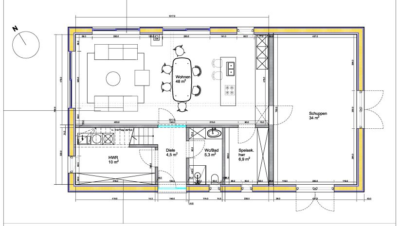
Das geplante Einfamilienhaus bietet ca. 167,5 m² Wohnfläche verteilt auf zwei Etagen. Eine großzügige Dachterrasse sowie eine kombinierte Garage/Lagerfläche mit ca. 35 m² runden das durchdachte Konzept ab. (Garage nicht in Wohnfläche enthalten)
Im Erdgeschoss empfängt Sie ein einladender Eingangsbereich, an den sich das erste Badezimmer und ein Hauswirtschaftsraum anschließen. Das Herzstück bildet der offen gestaltete Wohn- und Essbereich mit rund 50 m², der durch bodentiefe Fensterflächen viel Licht und ein luftiges Raumgefühl bietet. Direkt angeschlossen ist die geräumige Garage mit zwei Toren à 2,5 m Breite, die vielseitig nutzbar ist – ideal für Handwerksbetriebe, Garage oder als Lagerfläche.
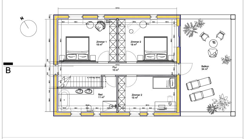
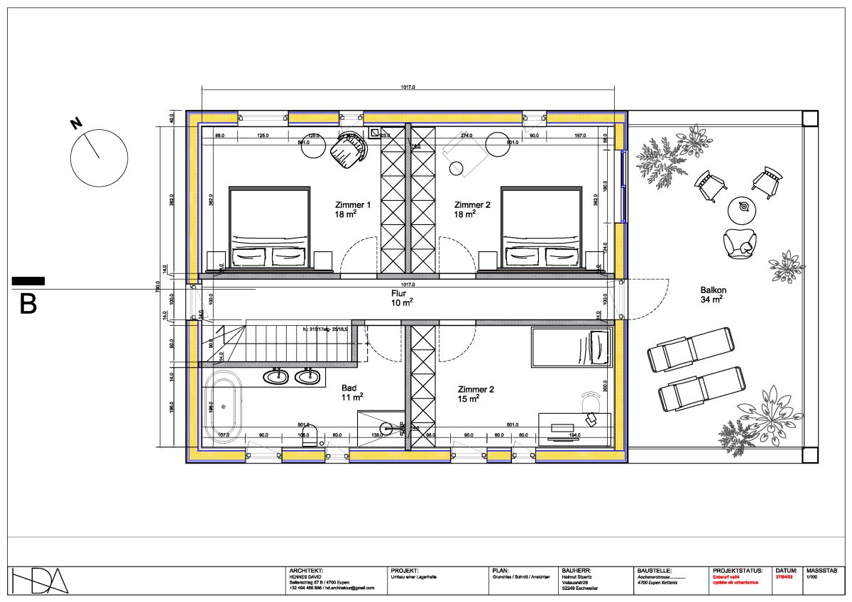
Im Obergeschoss erwarten Sie drei Schlafzimmer sowie ein weiteres, voll ausgestattetes Badezimmer. Ein besonderes Highlight: die überdachte Dachterrasse mit rund 35 m², perfekt für laue Sommerabende und gesellige Stunden im Freien.
Im Rahmen des Innenausbaus sowie der Grundrissgestaltung besteht – je nach Baufortschritt – Mitspracherecht für den Käufer. Materialien wie Parkett, Fliesen und Sanitärausstattung können in einem definierten Rahmen frei gewählt werden, um dem neuen Zuhause eine individuelle Handschrift zu verleihen.
Haben wir Ihr Interesse geweckt?
Kontaktieren Sie uns gerne für weitere Informationen, Grundrisse oder einen persönlichen Beratungstermin vor Ort!

 

Ausstattung

 

Der Baubeginn des Projekts ist für August 2025 vorgesehen, die Fertigstellung ist für Ende 2026 bzw. Anfang 2027 geplant.
Das Einfamilienhaus wird nach dem neuesten energetischen Standard errichtet – mit Fokus auf nachhaltige Bauweise, hoher Energieeffizienz und langfristiger Werthaltigkeit. Die Holz-Beton-Hybridkonstruktion kombiniert die ökologische Stärke des natürlichen Baustoffs Holz mit der strukturellen Robustheit von Beton – ideal für modernes, nachhaltiges Wohnen.
Beheizt wird das Gebäude über eine leistungsstarke Luftwärmepumpe in Verbindung mit einer komfortablen Fußbodenheizung im gesamten Wohnraum. Ergänzend wird eine Photovoltaikanlage mit bis zu 10 kWp Leistung installiert, was die energetische Selbstversorgung weiter optimiert und die laufenden Betriebskosten deutlich reduziert.
Für ein hervorragendes Raumklima sorgen dreifach verglaste Fenster mit sehr guten Dämmwerten, die zugleich Schallschutz bieten. Der voraussichtliche Energieausweis wird mindestens die Energieklasse A erreichen – ein starkes Argument für alle, die in die Zukunft investieren möchten.

 

Lage

 

Die Neubauimmobilie an der Aachener Straße 311 B liegt im charmanten Ortsteil Kettenis der Stadt Eupen – mitten im Herzen der Deutschsprachigen Gemeinschaft Belgiens. Diese Lage besticht durch ihre strategische Position an der Grenze zu Deutschland, nur wenige Fahrminuten von Aachen entfernt. Die gute Anbindung über die E40 und die Nähe zu Städten wie Lüttich, Maastricht und Aachen machen die Region besonders attraktiv für Pendler und grenzüberschreitend Arbeitende.
Kettenis selbst bietet eine ausgewogene Mischung aus ländlicher Ruhe und urbaner Nähe. Familien schätzen die hohe Lebensqualität, die zahlreichen Kindergärten und Schulen sowie das sichere, nachbarschaftliche Umfeld. Einkaufsmöglichkeiten, Ärzte, Apotheken und Gastronomie befinden sich im direkten Umfeld oder im nahegelegenen Eupen-Zentrum. Naturfreunde profitieren von den weitläufigen Wiesen, Wäldern und Spazierwegen, während Sport- und Kulturangebote ebenfalls nicht zu kurz kommen.
Die Aachener Straße zählt zu den Hauptachsen der Region, doch das Objekt liegt weit zurückversetzt (ca. 45 Meter) im verkehrsberuhigten Abschnitt – mit einer durchdachten Erschließung und angenehmer Privatsphäre. Wer naturnahes Wohnen mit grenznaher Erreichbarkeit und moderner Infrastruktur verbinden möchte, trifft hier eine hervorragende Wahl.

Yves Bauens
Yves Bauens (ITS Concept Immobilien GmbH) 0049 (0)241 - 70 13 13 12 ybauens@itsconcept.de

Anbieter kontaktieren

  • Dieses Feld dient zur Validierung und sollte nicht verändert werden.