Hergenrath

LOS 1B – Baugrundstücke in Hergenrath – ruhig, grenznah

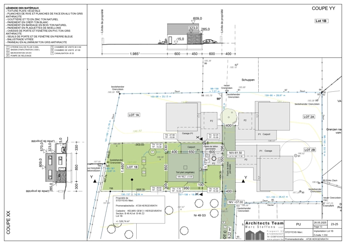
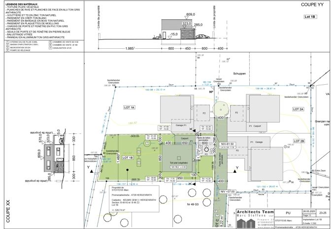
Grundstück: 527 m²
  • Energieklasse:
  • Espec:
  • Etotal:
  • Code (Energieausweis):
  • Jahrgang (Energieausweis):
  • Gültig bis (Energieausweis):

LOS 1B – Zum Verkauf stehen ein oder zwei attraktive und sehr schön gelegene Baugrundstücke in Hergenrath, südlich von Aachen. Die Grundstücke liegen in zweiter Reihe und sind über einen privaten Zufahrtsweg als Sackgasse erreichbar – ein echtes Plus für alle, die Privatsphäre und Ruhe schätzen. Durch die Lage abseits der Straße ist kein Durchgangsverkehr vorhanden, was ein besonders angenehmes und familienfreundliches Wohnen ermöglicht.

Die Grundstücksgrößen betragen ca. 553 m² bzw. 585 m² und eignen sich ideal zur Bebauung mit freistehenden Einfamilienhäusern. Eine gültige Baugenehmigung ist im Kaufpreis enthalten und wird bei Übergabe mitgeliefert. Die Parzellen sind somit direkt bebaubar – ohne Verzögerungen oder zusätzliche Genehmigungsverfahren. Bei Bedarf können beide Parzellen zu einem großzügigen Gesamtgrundstück zusammengelegt werden.

Hergenrath überzeugt durch seine naturnahe Umgebung mit direkter Nähe zum Aachener Wald sowie durch eine gute Verkehrsanbindung, auch per Bahn. Die deutsche Grenze ist nur wenige Minuten entfernt, und auch das Zentrum von Aachen ist schnell erreichbar. Der Ort bietet eine gute Infrastruktur mit Einkaufsmöglichkeiten, Kinderkrippe, Kindergarten und Grundschule.

Seit dem 01.01.2025 gilt in Belgien eine reduzierte Grunderwerbsteuer von 3 % – vorausgesetzt, bestimmte Bedingungen sind erfüllt, z. B. die Eigennutzung als Hauptwohnsitz. Ansonsten beträgt die Steuer regulär 12,5 %.

Der angegebene Kaufpreis versteht sich zzgl. Nebenkosten. Zusätzlich sind Infrastrukturkosten in Höhe von 6.000 € zzgl. MwSt. pro Grundstück zu berücksichtigen.

Wenn Sie auf der Suche nach einem ruhigen, dennoch gut angebundenen Ort zum Bauen und Leben sind, ist dieses Angebot eine hervorragende Gelegenheit.

Weitere Informationen und Kaufpreis auf Anfrage.

Promenadestrasse, Hergenrath, Belgien
Denis Steffens
Denis Steffens (CODIA Immo) 087/60.28.60 info@codia-immo.be

Bei CODIA Immo vereinen wir Fachkompetenz und Herzblut, um Ihnen in der Euregio den besten Immobilienservice zu bieten. Ob Kauf, Verkauf, Vermietung oder Investment – unser erfahrenes Team ist für Sie da und berät Sie persönlich und transparent, Schritt für Schritt.

Unsere Region ist unser Zuhause, und wir lieben sie – von den malerischen Landschaften bis zu den lebendigen Städten und Gemeinden. Wir kennen die besten Orte, ob Sie Ruhe oder Nähe zu Aachen und Lüttich suchen, und finden mit Ihnen gemeinsam Ihr Traumzuhause.

Anbieter kontaktieren

  • Dieses Feld dient zur Validierung und sollte nicht verändert werden.