Lontzen

Lontzen – Villa

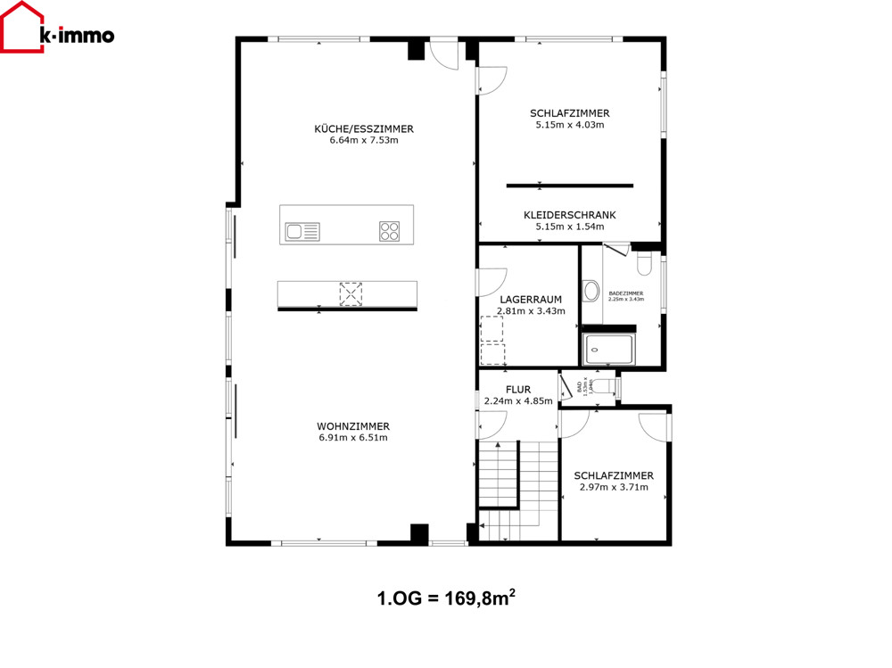
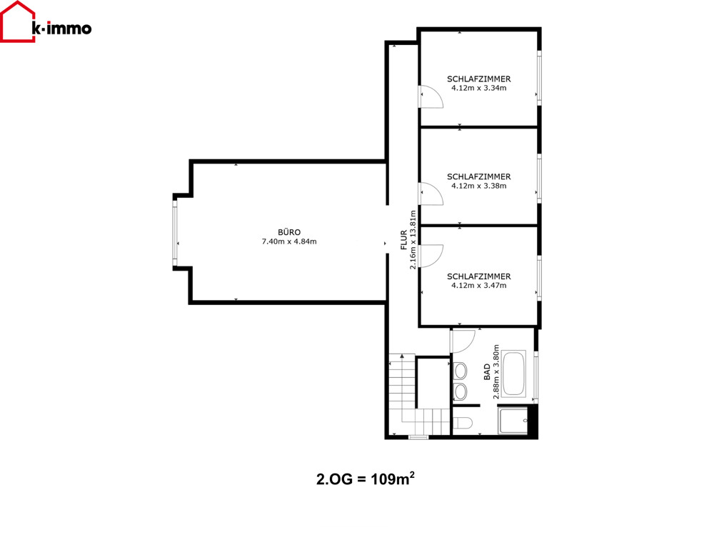
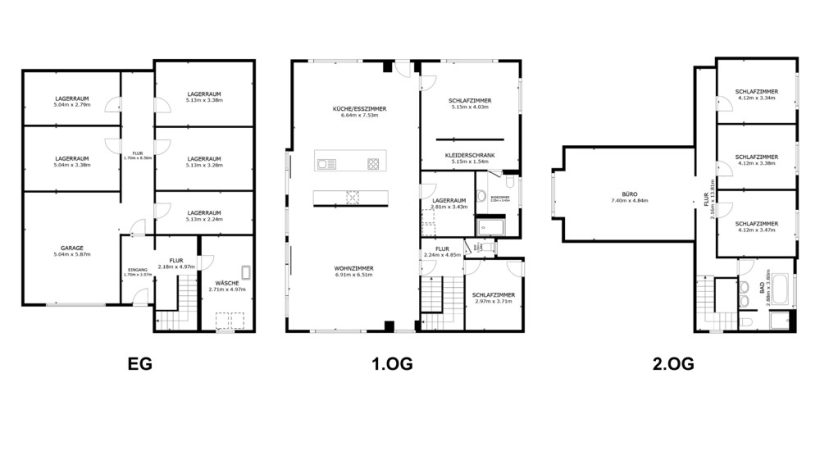
Schlafzimmer: 5 Bäder: 2 Grundstück: 900 m² Wohnfläche: 279 m² Nutzfläche: 128 m² Parkplätze: Garage Heizung: Luft/Wasser Wärmepumpe Baujahr: 2010
  • Energieklasse:
  • Espec: 80  kWh/m2.a
  • Etotal:
  • Code (Energieausweis): 20250814019835
  • Jahrgang (Energieausweis): 2010
  • Gültig bis (Energieausweis): 14.08.2035

Objektbeschreibung:

Willkommen in Ihrem neuen Traumhaus! Dieses beeindruckende Einfamilienhaus, erbaut im Jahr 2010, vereint modernen Komfort mit stilvollem Design und befindet sich in einem neuwertigen Zustand. Auf einer großzügigen Grundstücksgröße von etwa 900 m² bietet dieses Anwesen reichlich Platz für Entfaltung und Privatsphäre.

Mit einer Wohnfläche von circa 279 m² und zusätzlichen Nutzflächen von rund 128 m² präsentiert sich das Haus äußerst geräumig und vielseitig. Insgesamt stehen sechs Zimmer zur Verfügung, darunter fünf einladende Schlafzimmer, die Ihnen und Ihrer Familie geruhsame Nächte garantieren. Zwei elegante Badezimmer vervollständigen das exklusive Raumangebot und bieten ausreichend Raum für jeden Morgenbedarf. Ein absolutes Highlight ist die lichtdurchflutete und „schwebende“ Gallergie zentral im Haus.

Diese Immobilie ist nicht nur ein Haus, sondern ein stilistisches Zuhause, mit garantiertem AHA-Effekt. Der optimal gestaltete Grundriss bietet Platz für alle Lebenslagen und Gelegenheiten – sei es ein großes Familienessen, ein entspannter Abend im Wohnzimmer oder die Verwirklichung individueller Wohnträume. Jedes Detail des Hauses ist darauf ausgerichtet, den Alltag harmonisch und mühelos zu gestalten.

Umgeben von einer wunderbaren Umgebung, bietet das Grundstück vielfältige Möglichkeiten für Gärtner oder jene, die einfach nur die Natur genießen möchten. Dieses Haus ist die perfekte Gelegenheit, um den Traum vom eigenen Heim wahr werden zu lassen. Erkunden Sie die Potenziale, die dieses einzigartige Angebot bietet – der Weg zu Ihrem neuen Zuhause beginnt hier.

Ausstattung:

– 2022 Wärmepumpe

– Fenster – Doppelverglasung

– hochwertige Bauausführung

– Fußbodenbelag: Stein, Teppich, Fliesen (Keramikstein)

– Photovoltaik 10KW

– Garage mit Bewegungsmeldern

– Einbauküche

– Außensteckdose

– Klärgrube

– Fettabscheider

– Einbauküche (Siemens)

– Vollunterkellert

– Terrasse

– Kanalanschluss

– Sonnenplatz

– Spots

– 5 Kellerräume

– Wallbox

– Fußbodenheizung

– Südterrasse

– Stellplatz

– schwebende Galerie

– Speicher

Lage:

Dieses charmante Einfamilienhaus befindet sich in der malerischen Gemeinde Lontzen, einer ruhigen und naturnahen Region im Osten Belgiens. Lontzen ist bekannt für seine idyllische Landschaft und bietet ein harmonisches Umfeld, das ideal für Familien ist, die das ruhige Landleben genießen möchten. Die Gemeinde liegt in unmittelbarer Nähe zu den Städten Eupen und Aachen, was eine hervorragende Anbindung an zahlreiche Annehmlichkeiten, Einkaufsmöglichkeiten und kulturelle Angebote gewährleistet. Zudem bietet die Lage eine gute Erreichbarkeit der Autobahn E40, die Lontzen mit sowohl belgischen als auch deutschen Zentren verbindet. Die Region ist von weitläufigen Grünflächen umgeben, die zahlreiche Möglichkeiten für Outdoor-Aktivitäten wie Wandern und Radfahren bieten. In der näheren Umgebung befinden sich zudem mehrere Schulen und Einkaufsmöglichkeiten, die den täglichen Bedarf abdecken. Diese naturnahe und gleichzeitig vorteilhaft gelegene Immobilie bietet alles, was man sich von einem Heim in einem freundlichen und einladenden Umfeld wünschen kann.

Sonstige Angaben:

PEB Nr.: 20250814019835

Gültig bis: 14.08.2035

Gesamter theoretischer Primärenergieverbrauch: 27.694kWh/Jahr

Spezifischer Primärenergieverbrauch: 80 kWh/m² Jahr

Energieklasse A

Kataster ca. 2.000€

Anbieter-Objekt-ID: 2025026

Jochen Küchen
Jochen Küchen (k-immo Projekt Management GmbH) +32 (0) 87 300 6546 anfragen@k-immobilien.eu

Anbieter kontaktieren

  • Dieses Feld dient zur Validierung und sollte nicht verändert werden.