Lontzen – bezugsfertige Doppelhaushälfte A++ provisionsfrei
- Energieklasse:
- Espec: 18 kWh/m2.a
- Etotal: -3.096 kWh/a
- Code (Energieausweis): 20171129503465
- Jahrgang (Energieausweis): 2016
- Gültig bis (Energieausweis): 29.11.2027
Objektbeschreibung:
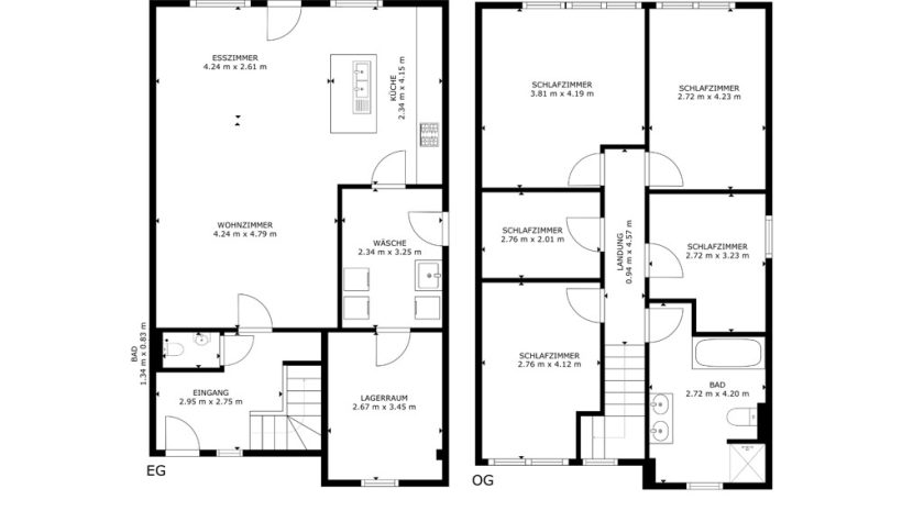
Diese moderne Doppelhaushälfte aus dem Baujahr 2016 bietet ein durchdachtes Wohnkonzept und eignet sich ideal als komfortables Zuhause für Paare und Familien. Auf rund 141 m² Wohnfläche erstrecken sich fünf gut proportionierte Zimmer über zwei Etagen und schaffen ein ausgewogenes Verhältnis aus Offenheit, Funktionalität und Wohnqualität.
Vier Schlafzimmer sowie ein Badezimmer bieten ausreichend Platz für individuelle Rückzugsorte und ein harmonisches Zusammenleben. Die zeitgemäße Grundrissgestaltung ermöglicht vielseitige Nutzungsmöglichkeiten – sei es für Arbeiten im Homeoffice, Gästezimmer oder persönliche Freizeitbereiche.
Das Grundstück bietet zudem ausreichend Fläche für Garten, Terrasse und individuelle Gestaltungsideen – perfekt für entspannte Stunden im Freien oder ein familienfreundliches Umfeld. Insgesamt präsentiert sich diese Doppelhaushälfte in einem sehr gepflegten, neuwertigen Zustand und eignet sich hervorragend als langfristiges Zuhause mit hoher Wohn- und Lebensqualität.
Ausstattung:
– Photovoltaik
– Einbauküche
– Garage
– Bodenbelag: Fliesen & Laminat
– Tageslichtbad
– Badewanne
– Ebenerdige Dusche
– 2-Fachverglasung
Lage:
Die angebotene Doppelhaushälfte befindet sich in der charmanten Gemeinde Lontzen, gelegen im beschaulichen Osten Belgiens. Diese Region ist bekannt für ihre malerische Landschaft und die harmonische Verbindung von ländlicher Idylle und urbanem Komfort. Lontzen zeichnet sich durch seine ruhige und familienfreundliche Atmosphäre aus, die dennoch eine hervorragende Anbindung an nahegelegene Städte bietet. Die Gemeinde bietet eine Vielzahl von Annehmlichkeiten, darunter Schulen, Einkaufsmöglichkeiten und Freizeitangebote, die in wenigen Autominuten erreichbar sind. Dank der strategischen Lage genießen Sie sowohl die Ruhe der Natur als auch den einfachen Zugang zu den kulturellen und wirtschaftlichen Zentren der Umgebung. Die Nähe zur Autobahn und zum öffentlichen Verkehrsnetz ermöglicht zudem eine schnelle Verbindung zu den benachbarten Regionen und darüber hinaus, was diese Lage sowohl für Pendler als auch für Ruhesuchende ideal macht.
Sonstige Angaben:
PEB Nr.: 20171129503465
Gültig bis: 29.11.2027
Gesamter theoretischer Primärenergieverbrauch: -3.096kWh/Jahr
Spezifischer Primärenergieverbrauch: -18kWh/m² Jahr
Energieklasse A++
—