Bütgenbach

Lebensqualität, Natur, moderner Wohnkomfort in einer einzigartigen Verbindung – Ein-Schlafzimmer-Wohnung mit XXL-Terrasse in der Residenz FEO !

Schlafzimmer: 1 Bäder: 1 Wohnfläche: 56 m² Heizung: Wärmepumpe Fußbodenheizung Baujahr: 2025
  • Energieklasse:
  • Espec:
  • Etotal:
  • Code (Energieausweis):
  • Jahrgang (Energieausweis):
  • Gültig bis (Energieausweis):

Wohnen und leben in Bütgenbach bedeutet Auftanken, Entdecken und Genießen am Rand eines der größten Naturschutzgebiete Belgiens, dem Hohen Venn.
Die Region bietet ein einzigartiges Lebensgefühl, geprägt von intakter Natur, frischer Luft und einer beeindruckenden Landschaft. Bütgenbach ist der ideale Ort, um nach einem anspruchsvollen Arbeitstag zur Ruhe zu kommen. Auf den zahlreichen Rad- und Wanderwegen oder am sanft plätschernden Ufer der Warche können Sie den Alltag hinter sich lassen und neue Kraft schöpfen.
Die Lage im Herzen der typischen Eifellandschaft, nahe der Grenzen zu Deutschland und Luxemburg, verbindet Naturerlebnis mit hervorragender Erreichbarkeit. Alle Annehmlichkeiten des täglichen Lebens befinden sich in unmittelbarer Nähe, sodass sich Ihre Lebensqualität spürbar erhöht und Sie den Komfort dieser modernen Wohnlage in vollen Zügen genießen können.
Die Residenz FEO vereint persönlichen Komfort, stilvolle Eleganz und Privatsphäre. Die zeitgemäße, helle Architektur und der harmonische Materialmix schaffen ein Wohnambiente, das höchsten Ansprüchen gerecht wird. Acht Wohneinheiten, ein Aufzug, eine Tiefgarage und Außenstellplätze garantieren ein Höchstmaß an Komfort und Bequemlichkeit.
Große, bodentiefe Fenster sorgen für lichtdurchflutete Räume und eine optimale Verbindung zwischen Innen- und Außenbereich. Die moderne Ausstattung mit bodengleichen Duschen, Fußbodenheizung, hochwertigen Sanitäranlagen und einer großzügigen Sonnenterrasse schafft ein Wohngefühlt voller Wärme und Wohlbehagen. Die nachhaltige, energieeffiziente Bauweise mit ausgezeichneter Wärme- und Schalldämmung sowie zahlreiche Sicherheitsaspekte – darunter eine Videosprechanlage, Absturzsicherungen und eine Brandmeldeanlage – unterstreichen den hohen Qualitätsstandard dieser außergewöhnlichen Residenz.
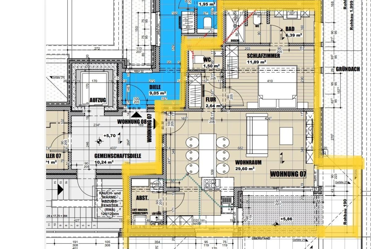
Im Staffelgeschoss der Residenz präsentieren wir Ihnen die Wohneinheit Nr. 7 mit einer Wohnfläche von ca. 56 m², einer Sonnenterrasse von ca. 32 m², einem eigenen Kellerraum m² direkt neben der Wohnung, sowie einem Tiefgaragenstellplatz und einem Außenparkplatz.

Die Wohnung mit direktem Zugang in den offenen Wohn-, Ess- und Kochbereich mit rund 30 m² bildet das Herzstück der Wohnung. Hier ermöglichen großflächige Fensterfronten helle, offene Räume, die zum Entspannen, Genießen und Gestalten einladen. Die offene Küche (ohne Einbauküche) erlaubt eine moderne Wohnkonzeption, während der angrenzende Abstellraum Stauraum für die Waschmaschine bietet. Über den Wohnbereich erreichen Sie die herrliche Terrasse ( ca. 32 m²) , die Ihnen sonnige Stunden und entspannte Auszeiten an der frischen Luft ermöglicht. Der Nachtbereich umfasst einen kleinen Flur ( ca. 3m²) mit Gäste-WC , ein modernes Bad (ca. 6 m²) mit italienischer Dusche, WC und Waschbecken sowie ein angenehmes Schlafzimmer von etwa 12 m².
Die Residenz FEO steht für nachhaltiges, energieeffizientes Wohnen und verbindet höchste bauliche Qualität mit anspruchsvoller Architektur. Doppelverglasung, ein umweltbewusstes Heizsystem, moderne Sicherheitsstandards, eine sonnige Terrasse, ein Gemeinschaftsgarten und private Kellerbereiche gehören ebenso zum Gesamtbild wie die hervorragende Lage mitten in einer intakten Naturlandschaft. Alle Angaben zu Wohnflächen beziehen sich auf die tatsächliche Wohnfläche; leichte Abweichungen von bis zu zwei Prozent sind technisch möglich. Die Kaufpreise verstehen sich zuzüglich 21 % Mehrwertsteuer sowie Notarkosten.
Mit der Residenz FEO beginnt ein neuer Lebensabschnitt in einer Umgebung, die Ruhe, Freiheit und Lebensqualität auf besondere Weise vereint. Hier finden Sie den Raum und die Privatsphäre, die Sie zum Wohlfühlen benötigen – und einen Ort, an dem sich Wohnen wie Ankommen anfühlt.

Hinter Dem Lehen 3, Bütgenbach, Belgien
Bruno Creutz
Bruno Creutz (Euroimmo SRL) 0471 / 391287 info@euroimmo.net

Anbieter kontaktieren

  • Dieses Feld dient zur Validierung und sollte nicht verändert werden.