Bleyberg

Investoren, eine Gelegenheit, die Sie nicht verpassen sollten: Strategisches Projekt mit hohem Potenzial – über 2 ha flexibel entwickelbare Fläche!

Grundstück: 20608 m²
  • Energieklasse:
  • Espec:
  • Etotal:
  • Code (Energieausweis):
  • Jahrgang (Energieausweis):
  • Gültig bis (Energieausweis):

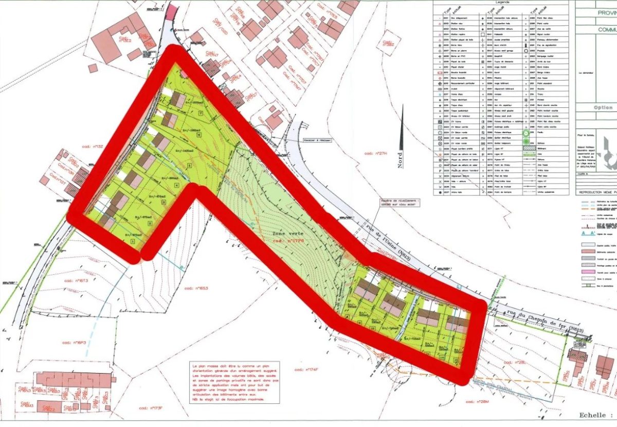
In einer grünen und ruhigen Umgebung, und dennoch in der Nähe zahlreicher Annehmlichkeiten, bieten wir Ihnen ein außergewöhnliches Ensemble von Baugrundstücken mit einer Gesamtfläche von über 2 Hektar zum Verkauf an.
Dieses seltene Angebot umfasst:
• Ein Grundstück in der Rue des Anciens Fours mit einer Bruttofläche von 17.954 m²,
• Ein weiteres Grundstück in der Rue Windt mit 2.654 m²,
die zusammen Teil einer 2023 erteilten Parzellierungsgenehmigung für 15 Parzellen sowie einer Grünzone sind.
Eine seltene und flexible Gelegenheit
Dieses Projekt zeichnet sich durch die große Gestaltungsfreiheit aus, die es bietet:

• Lineare Übernahme: Möglichkeit, das gesamte Ensemble zu erwerben und die Aufteilung sowie die Etappierung des Projekts nach Ihrer eigenen Vision zu gestalten.
• Geplante Nutzung: gemäß dem übergeordneten architektonischen Konzeptplan (auf Anfrage erhältlich).
Die genehmigten Bauformen umfassen sowohl Ein-, Zwei-, Drei- und Vierfassadenhäuser als auch Mehrfamilienhäuser (vorbehaltlich kommunaler Genehmigung).
Strategisch und begehrt gelegen
Das Grundstück liegt in einer naturnahen Umgebung und bietet eine ideale Lage für eine künftige Wohnentwicklung, die sich an Eigentümer richtet, die Ruhe und Grün schätzen, ohne auf Nähe zu Verkehrsachsen und Stadtzentren zu verzichten.
Die Umgebung überzeugt durch zahlreiche Wander- und Freizeitmöglichkeiten, die Nähe zum RAVeL-Netz sowie die gute Erreichbarkeit der umliegenden Ortschaften und Städte.
Dank der Nähe zu mehreren Grenzen ist dieser Standort auch ideal für Pendler nach Deutschland oder in die Niederlande.
Entfernungen
• Plombières: 750 m
• Montzen: 1,6 km
• Gemmenich: 3,5 km
• Vaals (NL): 8 km
• Aubel: 10 km
• Aachen (DE): 12 km
• Eupen: 17 km
• N613: unmittelbare Nähe

Fazit
Dieses Projekt stellt eine einzigartige Investitionsmöglichkeit dar, die vereint:
• eine bevorzugte, naturnahe Lage,
• ausgezeichnete Erreichbarkeit,
• hohe Entwicklungsspielräume,
• und eine bereits erteilte Parzellierungsgenehmigung.
Eine sichere und vielversprechende Investition in einer Region mit hoher Wohnattraktivität.
Alle relevanten Unterlagen (Kostenschätzung der Infrastrukturarbeiten, geplanter Nutzungsplan, Bauantrag usw.) können auf Anfrage oder nach Terminvereinbarung eingesehen werden.

Rue Des Anciens Fours, Bleyberg, Belgien
Bruno Creutz
Bruno Creutz (Euroimmo SRL) 0471 / 391287 info@euroimmo.net

Anbieter kontaktieren

  • Dieses Feld dient zur Validierung und sollte nicht verändert werden.