Recht

VERKAUFT: Immobilie mit vielseitigen Nutzungsmöglichkeiten und modernem Wohnkomfort in zentraler Lage in Recht, St.Vith

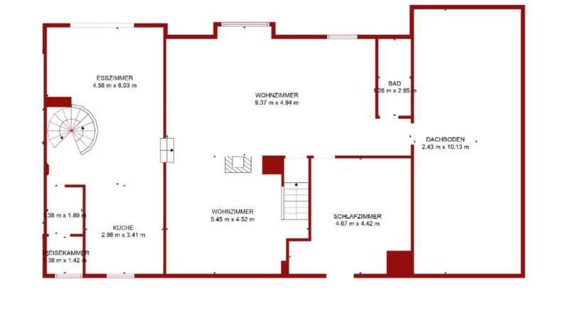
Schlafzimmer: 2 Bäder: 2 Grundstück: 532 m² Wohnfläche: 180 m² Heizung: Öl Fußbodenheizung Baujahr: 1960
  • Energieklasse:
  • Espec: 224  kWh/m2.a
  • Etotal: 48.039  kWh/a
  • Code (Energieausweis): 20240523022199
  • Jahrgang (Energieausweis):
  • Gültig bis (Energieausweis):

Entdecken Sie diese einzigartige Immobilie in zentraler Lage von Recht, Gemeinde St. Vith.

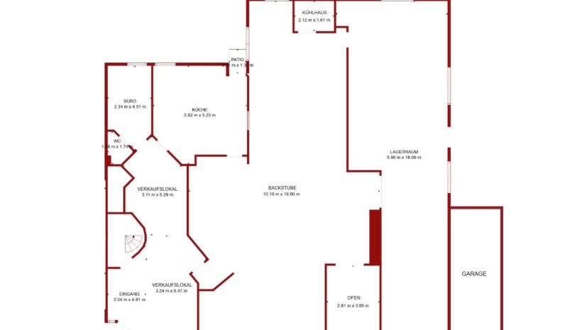
Im Erdgeschoss erwartet Sie eine großzügige Gewerbefläche von fast 280 m², die vielfältige Nutzungsmöglichkeiten bietet. Ob als Geschäft, Büro, Atelier oder sogar als Wohnraum – die Räumlichkeiten lassen sich flexibel an Ihre Bedürfnisse anpassen und bieten enormes Potenzial.

In den oberen Etagen, auf der ersten und zweiten Etage, befindet sich eine hochwertige Wohnung, die im Jahr 2022 komplett renoviert wurde. Hier trifft modernes Wohnen auf höchsten Komfort. Die Wohnung überzeugt mit einem zeitgemäßen Design, erstklassigen Materialien und einer idealen Raumaufteilung, die ein luxuriöses Wohngefühl garantiert.
Ein besonderes Highlight ist die Terrasse mit einer atemberaubenden Aussicht auf die umliegende Natur – ein perfekter Rückzugsort, um in Ruhe die Schönheit der Umgebung zu genießen.

Die zentrale Lage bietet zudem eine optimale Anbindung an alle wichtigen Einrichtungen und Verkehrswege, ohne auf die Ruhe und Idylle des Landlebens verzichten zu müssen.

Diese Immobilie vereint Wohnen und Arbeiten unter einem Dach – ideal für Unternehmer oder diejenigen, die viel Raum für ihre Visionen benötigen.

Es besteht ebenfalls die Möglichkeit, diese Immobilie gemeinsam mit dem Wohnhaus links zu kaufen.
Kontaktieren Sie uns für weitere Informationen oder einen Besichtigungstermin.

14 Zur Kaiserbaracke, Recht, Belgien
Immo Rauw
Immo Rauw +32 (0)80 24 24 23 info@immo-rauw.be

Anbieter kontaktieren

  • Dieses Feld dient zur Validierung und sollte nicht verändert werden.