Ideales Baugrundstück ohne Bauzwang in ländlich-grüner Umgebung, nahe der Grenzen und aller Annehmlichkeiten
- Energieklasse:
- Espec:
- Etotal:
- Code (Energieausweis):
- Jahrgang (Energieausweis):
- Gültig bis (Energieausweis):
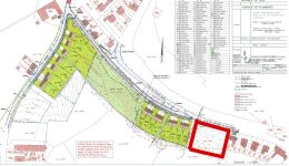
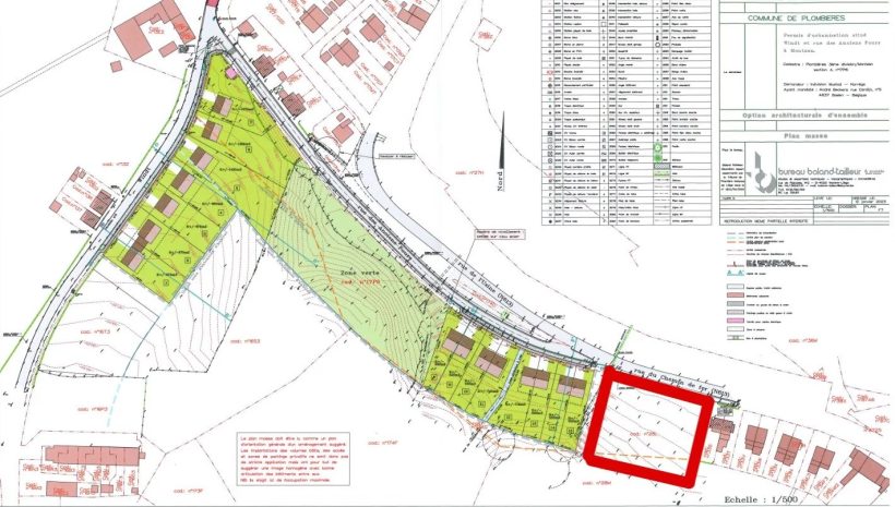
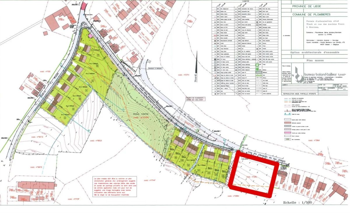
In einer grünen, ruhigen und geschützten Umgebung, und dennoch in unmittelbarer Nähe zahlreicher Annehmlichkeiten, präsentieren wir Ihnen dieses wunderschöne Baugrundstück mit einer Gesamtfläche von 3.002 m², ideal für ein hochwertiges Wohnprojekt.
Dieses Grundstück zeichnet sich durch eine seltene Freiheit der Bebauung aus – keine Bauverpflichtung innerhalb einer vorgegebenen Frist.
Vielfältige Bebauungsmöglichkeiten:
• Einfamilienhaus (freistehend / 4 Fassaden)
• Doppelhaus
• Mehrfamilienhaus
Jedes Bauvorhaben unterliegt der Zustimmung der Gemeinde.
Ein echter Vorteil für Privatpersonen, Investoren oder Projektentwickler, die Flexibilität suchen.
Eingebettet in die Natur bietet dieses Grundstück einen ruhigen Lebensraum für alle, die Entspannung, frische Luft und herrliche Ausblicke auf die Landschaft genießen möchten.
Die Umgebung überzeugt durch:
• Zahlreiche Wanderwege
• Die Nähe zum RAVeL-Netzwerk
• Die Gastfreundschaft der umliegenden Dörfer
Trotz der idyllischen Lage verfügt das Grundstück über eine ausgezeichnete Anbindung an Verkehrswege und städtische Zentren.
Ein perfekter Standort für Grenzpendler nach Deutschland oder in die Niederlande, dank der unmittelbaren Nähe zu mehreren Landesgrenzen.
📍 Wichtige Entfernungen
• Bleyberg: 750 m
• Montzen: 1,6 km
• Gemmenich: 3,5 km
• Vaals (NL): 8 km
• Aubel: 10 km
• Aachen (DE): 12 km
• Eupen: 17 km
• N613 in unmittelbarer Nähe
Fazit
Dieses Baugrundstück bietet eine hervorragende Gelegenheit, die Folgendes vereint:
• Eine bevorzugte Naturlage,
• Eine bemerkenswerte Erreichbarkeit,
• Große Bebauungsfreiheit ohne Bauverpflichtung.
Ein idealer Standort, um Ihr Projekt – heute oder morgen – zu verwirklichen!
