Charmantes Wohnhaus in ruhiger Lage von Büllingen – mit Ausbaupotenzial und Garten
- Energieklasse:
- Espec: 372 kWh/m2.a
- Etotal: 71.779 kWh/a
- Code (Energieausweis): 20240416005540
- Jahrgang (Energieausweis):
- Gültig bis (Energieausweis):
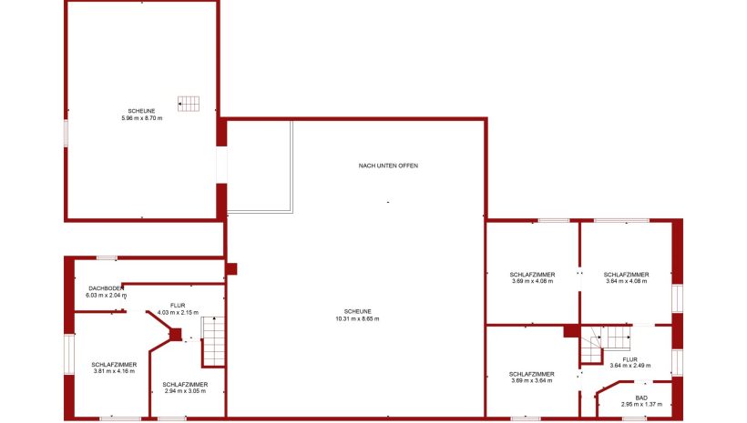
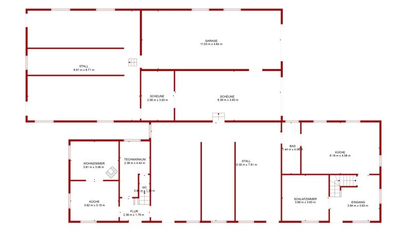
In idyllischer, ruhiger Lage von Büllingen präsentiert sich dieses Wohnhaus mit einer bestehenden Wohnfläche von 103 m² – ideal für Paare, Familien oder handwerklich geschickte Käufer, die sich ihren Wohntraum verwirklichen möchten.
Das Haus bietet neben den bereits ausgebauten Wohnräumen zusätzliches Potenzial zur Erweiterung: Weitere Flächen wie ehemalige Scheunen lassen sich nach individuellen Vorstellungen gestalten und ausbauen. Ob zusätzlicher Wohnraum, Hobbybereich oder beruflich – hier stehen Ihnen viele Möglichkeiten offen.
Ein Garten seitens des Hauses lädt zum Entspannen und Verweilen ein und bietet Platz für Freizeit, Spiel oder Gartenarbeit.
Trotz der ruhigen Umgebung profitieren Sie von einer zentralen Lage: Das Zentrum von Büllingen mit Einkaufsmöglichkeiten, Schulen, Ärzten und weiteren Einrichtungen des täglichen Bedarfs erreichen Sie bequem in wenigen Gehminuten.
Fazit: Eine interessante Immobilie in guter Lage mit viel Potenzial – ideal für alle, die Ruhe suchen und dennoch die Nähe zum Ortszentrum schätzen.
