Wirtzfeld

VERKAUFT: Charmantes landwirtschaftliches Anwesen mit vielseitigem Potential in Wirtzfeld

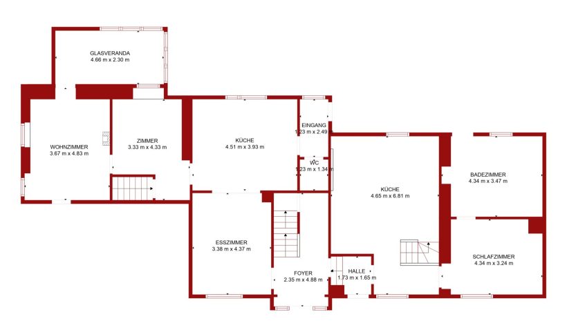
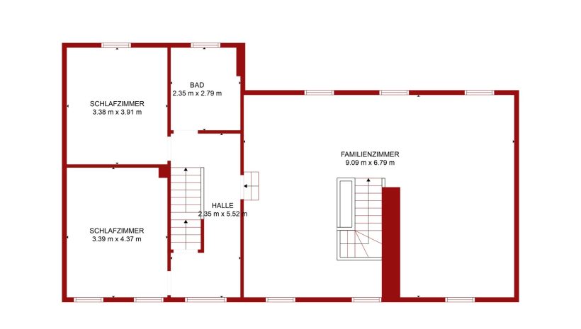
Schlafzimmer: 3 Bäder: 2 Grundstück: 5543 m² Wohnfläche: 275 m² Heizung: Öl Heizkörper Baujahr: 1800
  • Energieklasse:
  • Espec: 491  kWh/m2.a
  • Etotal: 179.247  kWh/a
  • Code (Energieausweis): 20250427006640
  • Jahrgang (Energieausweis):
  • Gültig bis (Energieausweis):

Herzlich willkommen in Wirtzfeld, einem malerischen Ort in der Gemeinde Büllingen, wo dieses beeindruckende landwirtschaftliche Anwesen auf Sie wartet. Mit insgesamt 5543² Grundstück, größtenteils in der Bauzone gelegen, bietet diese Immobilie eine einzigartige Gelegenheit für Investoren, Landwirte und kreative Köpfe.

Eigenschaften:
Großzügiges Grundstück: Die Landfläche umfasst 5543m² und ermöglicht Ihnen, Ihre Visionen auf diesem weitläufigen Areal zu verwirklichen.

Vielseitige Nutzungsmöglichkeiten: Das Anwesen verfügt über mehrere Nebengebäude sowie ein beeindruckendes Hauptvolumen, das sich perfekt für diverse Zwecke umgestalten lässt. Egal, ob Sie an eine Landwirtschaft, Gewerbe oder gar ein Wohnprojekt denken – hier sind Ihrer Kreativität keine Grenzen gesetzt.

Naturnahes Wirtzfeld: Die Lage in Wirtzfeld besticht nicht nur durch die Nähe zum idyllischen Bütgenbacher See, sondern auch durch die umgebende wundervolle Natur. Ein Ort, der Ruhe und Erholung verspricht, während Sie dennoch von der Infrastruktur und den Annehmlichkeiten der Gemeinde Büllingen profitieren.

Entwicklungspotential: Durch die Größe des Grundstücks bietet dieses Anwesen nicht nur aktuelle Nutzungsmöglichkeiten, sondern auch langfristiges Entwicklungspotenzial, das sich an die Bedürfnisse der kommenden Jahre anpassen lässt.

Fazit:
Diese Immobilie in Wirtzfeld ist nicht nur ein landwirtschaftliches Anwesen, sondern eine Investition in Ihre Zukunft. Die Kombination aus großzügigem Grundstück, vielseitigen Gebäuden und der reizvollen Umgebung macht dieses Angebot zu einer einzigartigen Gelegenheit. Nutzen Sie die Chance, Ihre Träume in die Realität umzusetzen, und werden Sie Teil der charmanten Gemeinschaft von Wirtzfeld.

Vereinbaren Sie noch heute einen Besichtigungstermin und entdecken Sie die unzähligen Möglichkeiten, die dieses Anwesen zu bieten hat.

2 Zum Wirtzbach, Wirtzfeld, Belgien
Immo Rauw
Immo Rauw +32 (0)80 24 24 23 info@immo-rauw.be

Anbieter kontaktieren

  • Dieses Feld dient zur Validierung und sollte nicht verändert werden.